



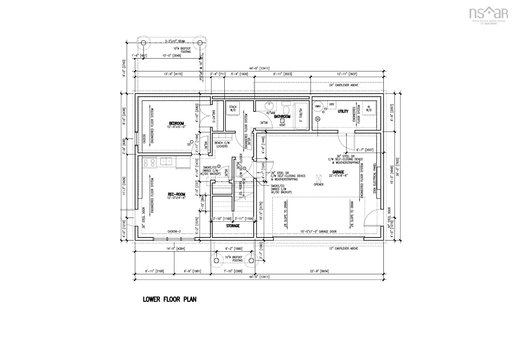
THIS HOME WILL CONTAIN A LEGAL SECONDARY SUITE IN THE BASEMENT. ASK FOR DETAILS. Join us every Saturday and Sunday from 2-4 pm at our Model Home at 451 Zaffre Drive to view our beautiful selections and to discuss a potential new build for you. Amara Developments is thrilled to introduce “The Cortina in the newest phase of Indigo Shores in Middle Sackville, Nova Sc...

